Rustico in vendita

Vigonza, Via cavinello - Pionca
€ 145.000
5 locali 5 locali
190 Mq 190 Mq
2 bagni 2 bagni

Rustico in vendita

Vigonza, Via cavinello - Pionca

Descrizione annuncio

PIONCA-
In una posizione tranquilla, proponiamo in vendita una casa singola completamente da restaurare, ideale per chi desidera personalizzare gli spazi secondo il proprio gusto e le proprie esigenze.

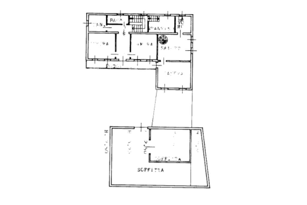
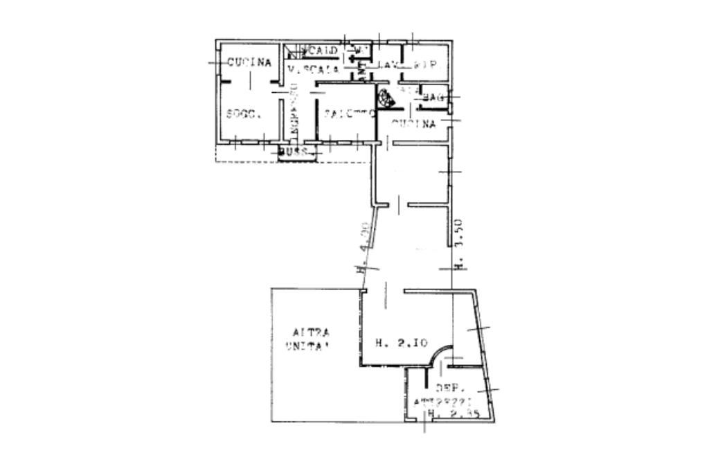
L’immobile si sviluppa su due livelli.
Al piano terra si trovano una zona giorno in stile open space con cucina e soggiorno, una camera matrimoniale, un bagno e una lavanderia.

Al piano superiore la casa offre ambienti ampi e luminosi, con due camere matrimoniali, una camera singola, due bagni e una seconda zona giorno con cucina e salotto in open space.

Una soluzione con grande potenziale, perfetta per una famiglia numerosa o per chi cerca una casa da ristrutturare e valorizzare, in un contesto tranquillo ma comodo ai servizi.

Mostra tutto

Nelle vicinanze

Scuole Scuole
Scuole
290 m
Scuola Primaria "Guglielmo Marconi"
340 m
Ic Codiverno
1,6 Km
Scuola secondaria di primo grado "B. Scardeone"
2,5 Km
Scuola primaria "Giovanni XXIII"
2,5 Km
Ospedali Ospedali
Ospedali
740 m
Bar Bar
Bar Centrale
2,5 Km
Ristoranti Ristoranti
Pizzeria Gelateria Tre Stelle
710 m
Ostaria da Ciccio
1,2 Km
Mostra tutto

Caratteristiche

Rif.:
61106015
Piano:
Su più livelli di 1
Totale piani:
1
Box:
1
Posti auto:
2
Balconi:
1
Mostra tutto
Prezzo Prezzo
€ 145.000
Rata mutuo Rata mutuo
€ 683 / mese
Spese annue Spese annue
€ 0
Proponi il tuo prezzoProponi il tuo prezzo

Classe Energetica

G
G
G
G
G
G
G
G
G
EP globale non rinnovabile:
300.69 kW h/m² anno
EP invernale del fabbricato:
EP estiva del fabbricato:
Anno di costruzione:
1980
Riscaldamento:
Autonomo
Tipo impianto:
A radiatori
Tipo alimentazione:
Altro

Ti interessa visionare l'immobile?

Fissa un appuntamento  Fissa un appuntamento

Richiedi informazioni

Clicca su Leggi per aprire l'informativa
* Questi campi sono obbligatori

Calcola il tuo mutuo

Semplice e senza impegno
Anticipo

( % )
Mutuo

( % )

pochi semplici passi

inserisci i tuoi dati
Questionario completato
Grazie per aver richiesto un appuntamento senza impegno con un nostro Consulente del Credito e Assicurativo.

Hai inserito correttamente tutti i dati necessari e a breve riceverai una e-mail con un link da convalidare per inviare i tuoi dati.
Affiliato
Elidal Srl
Via XXIV Maggio, 3 35010 Vigonza (PD)

Il nostro staff


  • Gretaelena Matetich
    Affiliata

  • Spiridon Bumbu
    Collaboratore

  • Alessia Michelazzo
    Coordinatrice
Via XXIV Maggio, 3 35010 Vigonza (PD)
Zona: Vigonza e frazioni
Mostra su mappa
Orari: lunedì-venerdì 8.30-12.30/ 15.00-20.00;sabato 9.00-13.00; sabato pomeriggio e domenica su appuntamento.
Affiliato
Elidal Srl
Via XXIV Maggio, 3 35010 Vigonza (PD)

2026 Tecnocasa Franchising S.p.A. - P. IVA 08365160152 - Via Monte Bianco 60/A 20089 Rozzano (MI). Ogni agenzia ha un proprio titolare ed è autonoma. Privacy policy | Policy utilizzo | Cookie policy